Sunday, 31 May 2026

More good news for Wonthaggi overlay victims

THE Victorian Minister for Planning Sonya Kilkenny has acted to remove the planning blight on 114 Wonthaggi homes and building blocks this week raising the prospect that once additional assessments are completed, more homes might have the highly...

Michael Giles profile image
by Michael Giles
More good news for Wonthaggi overlay victims
The State Minister for Planning Sonya Kilkenny has removed the Environmental Audit Overlays from 114 blocks of land in Wonthaggi's North East housing precinct and it's likely the rest will follow.

THE Victorian Minister for Planning Sonya Kilkenny has acted to remove the planning blight on 114 Wonthaggi homes and building blocks this week raising the prospect that once additional assessments are completed, more homes might have the highly restrictive environmental overlays removed.

Bass Coast CEO Greg Box advised of this encouraging development on Wednesday afternoon this week, ahead of the presentation of a petition, sponsored by the Member for Eastern Victoria Renee Heath MP, signed by almost 5000 people in State Parliament on Thursday, June 20.

Here are the details from Greg Box’s ‘EAO Update’ for June 19, 2024:

“I am writing today you with good news on a significant breakthrough on issue of the Wonthaggi North-East Environmental Audit Overlay.

“Bass Coast Shire Council has been working closely with the Victorian Planning Authority (VPA) and the Environmental Protection Authority (EPA) over a number of weeks to bring certainty to the landowners impacted by the VPA's overlay.

“Last Friday's EAO Update confirmed that Preliminary Risk Screen Assessments on 114 properties had been completed by developers independent of the work Council is currently undertaking and all of these properties have been cleared.

“I am now pleased to inform you that representatives of the State Government Planning Minister today advised Council that they will now be removing the Environmental Audit Overlay from these properties. This will occur formally when the Victorian Government Gazette is published.

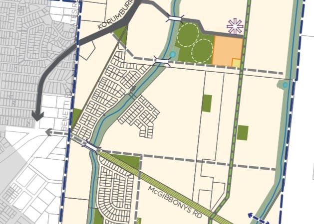
“These 114 properties are located within 173 Wentworth, Parklands and Powlett Ridge Estates (refer to attached maps). Council has recently advised impacted residents within these areas that PSRAs had been completed and we are now pleased to report the overlay will be removed.

“While the news so far is positive on the assessment process and today’s development is heartening, we await the formal findings of the appointed auditor at the end of this month to determine the outcome for the remaining properties. There may be some follow-up investigations needed and we will deal with that if required.

“We expect all properties that fulfill the obligations of the overlay to the overlay removed by the Planning Minister.

“The assessments are being co-funded by the Council and the VPA, with no cost to landowners.

“Thank you once again for your ongoing patience as we work through this complex situation. I recognise the stress and uncertainty this has caused many of you,” regards Greg Box, Chief Executive Officer, Bass Coast Shire Council.

Click here for maps of the impacted properties (map 61a):

Click here for maps of the impacted properties (map 64a):

Click here for maps of the impacted properties (map 64b):

Read More

puzzles,videos,hash-videos