Loss of vegetation no barrier to multi-storey unit development on Phillip Island
A THREE double-storey development and three-lot subdivision in a general residential zone in Cowes has been approved by Bass Coast Council despite strong objections from local residents over loss of vegetation. Twenty objections were received...
A THREE double-storey development and three-lot subdivision in a general residential zone in Cowes has been approved by Bass Coast Council despite strong objections from local residents over loss of vegetation.
Twenty objections were received opposing the development.
“This development is contrary to what we want to achieve with our neighbourhood character,” said Island Ward Cr Ron Bauer
“I appreciate that due to the DAL, we will need to infill larger sites but to make the entire area look like a sardine can, with two-storey dwellings is against what we want to achieve in Cowes.
“Over-development, overshadowing, and three two-storey developments.”
“It’s one thing to be able to tick the planning boxes but it’s another to make our community have to live with it,” said Cr Bauer.
Cr Tracey Bell said she understood that overshadowing was a major problem but wanted to point out that according to a submission by Bass Coast Housing Matters, the housing need in Bass Coast is not for three- or four-bedroom houses but for one- and two-bedroom homes.
“Some people want to live in a sardine can,” said Cr Bell.
“They’re single people who just need a bed and a roof over their head.”
Cr Jon Temby said he was sympathetic to the reasons for the objections and was not happy about a two-storey building close to a back fence where there was overshadowing as well as visual impact.
“But this plan meets all the planning rules and if we say no, it will go to VCAT.”
“Let’s make the rear building single-storey,” Cr Temby suggested.
According to Cr Tim O’Brien, there was a clear conflict between what was being proposed and the character of the local neighbourhood.
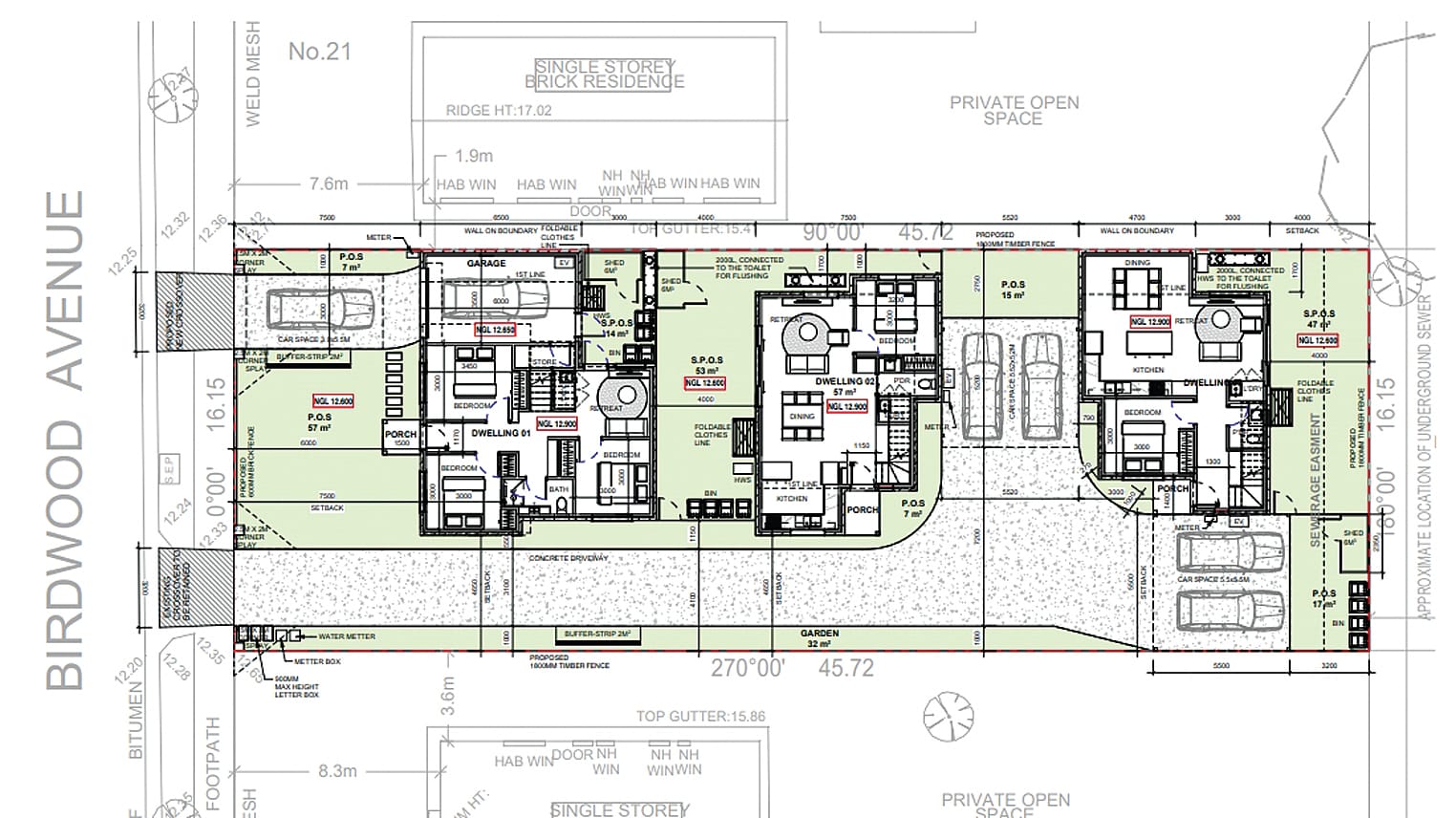
Birdwood Avenue in Cowes comprises predominantly older, single-storey brick or weatherboard dwellings with no or low fencing and scattered vegetation.
“This is out of whack,” said Cr O’Brien.
“We should be able to protect places that have a specific character.”
Cr Jan Thompson said it would cost $10,000 to $15,000 to go to VCAT and Council Officers who are professionals have advised that we don’t have a leg to stand on.
“How many times have we gone to VCAT and lost recently?” Cr Thompson asked.


“One lot of people are being forgotten,” said Cr Thompson.
“That is single homeowners and people who are retiring and want smaller abodes.
“I want to move from a
three-bedroom home to a single-bedroom home, but I can’t because there is nothing in my area,” said Cr Thompson.
Cr Mat Morgan said he was particularly concerned over the removal of vegetation but at the end of the day, the development met legislative requirements.
Deputy Mayor Cr Brett Tessari who grew up in a miner’s cottage in South Wonthaggi with a huge backyard said times had changed.
“Unfortunately, we have to move with it.
“Some people want to live in a two-storey townhouse close to town, and some
people want to live on a quarter, or half acre block out in the sticks,” said Cr Tessari.
There is a housing affordability problem according to Mayor Cr Rochelle Halstead.
The way it is being addressed said Cr Halstead was by doubling down on township boundaries, forcing people to cut up their blocks and increase density.
“As a local government we no longer have the power we used to have,” said Cr Halstead.
In accordance with the
Vegetation Protection Overlay, a planning permit is required to remove, destroy or lop any vegetation specified in the Overlay schedule.
The proposed subdivision and three-dwelling development at Birdwood Avenue was considered to have merit when consideration was given to broader state and local policies related to residential development and housing affordability.
The council arborist requested that a Flax Lead Paperbark tree and eight Photinias be retained having regard to the Vegetation Protection Overlay, and the height and spread of the tree canopies which contributed to the streetscape character.
Of ten trees on the site, three were found to be fruit trees with no planning permit required for their removal, and a mirror bush and a sweet pittosporum which are classified as weeds.
The proposal to construct three, double-storey dwellings in a General Residential Zone with the removal of vegetation in a Vegetation Protection Overlay was supported by a majority of Bass Coast councillors and the development was approved.